Logo Vakantiehuisjes.be Logo Vakantiehuisjes.be
  • Actueel & betrouwbaar
  • Direct boeken
  • Lage prijzen

8 persoons vakantie huis in Brastad-By Traum

|
Bekijk op kaart
8 persoons vakantie huis in Brastad-By Traum
8 persoons vakantie huis in Brastad-By Traum
8 persoons vakantie huis in Brastad-By Traum
+ 17 foto's
8 persoons vakantie huis in Brastad-By Traum
€212,86 v.a. prijs per nacht

De laagste prijsgarantie!

Heb je een vraag over dit vakantiehuis?

Neem contact met ons op

  • Wifi
  • Vakantiehuis
  • Afwasmachine
  • Vriezer
  • Oven / magnetron
  • Douche
  • Tuin
  • Wasmachine
Alle voorzieningen

Omschrijving

8 persoons vakantie huis in Brastad-By Traum

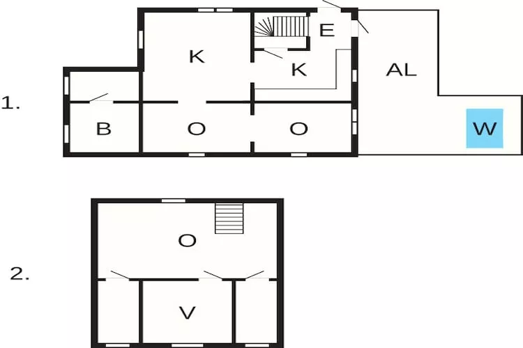
Willkommen in diesem familienfreundlichen, gemütlichen und komplett renovierten Ferienhaus in der Nähe von Wasser und Küste. Sie wohnen hier am Brofjorden, nahe des schönen und familienfreundlichen Badeufers bei Govik, ideal für einen Badeausflug. Die Unterkunft ist sehr komfortabel und bietet Zugang zu einer großen Rasenfläche und Terrasse. Dort steht auch ein Whirlpool für Entspannung und Badespaß bereit. Zugleich können Sie beim Baden auch die malerische Umgebung genießen. Ringsum das Haus findet man mehrere schöne Wanderwege und Pfade, darunter den beliebten Küstenweg, der draußen vorbeiführt. Unterwegs können Sie vielleicht eines der Waldtiere beobachtgen oder Pilze sammeln. In jedem Fall können Sie den herrlichen Meerblick bewundern. Es ist nicht weit nach Lysekil oder Brastad mit ihren Stränden, Golfplätzen und anderen Sehenswürdigkeiten. Die Unterkunft ist auch ein perfekter Ausgangspunkt um in der Natur aktiv zu sein, ob beim Wandern, Klettern, Kajak fahren oder Tauchen. Das Ferienhaus ist wunderschön gelegen, zwischen Haus und Meer liegt ein kleiner Familiencampingplatz. Sie können das Meer zwischen den Bäumen, die das Grundstück begrenzen, erahnen. Vom Eingang betreten Sie einen kleinen Flur und weiter geht es in die offene Küche mit Herd, separatem Backofen, Mikrowelle, Kaffeemaschine, Geschirrspüler und einem großen Essbereich. Von der Essecke geht es weiter zum Wohnzimmer mit doppelter Schlafcouch, TV und einer gemütlichen Sitzecke mit Holzofen. Im Parterre befindet sich auch ein Badezimmer mit Dusche und Fußbodenheizung. Vom Eingangsbereich führt eine Treppe hinauf in den ersten Stock mit einem Schlafzimmer mit Doppelbett und zwei Schlafnischen mit je einem 140 cm breiten Bett in jeder Nische. Hier liegt auch das zweite Wohnzimmer des Ferienhauses mit Fernseher und Holzofen. Die großflächige Terrasse ist mit Gartenmöbeln, Sonnenliegen und einem Grill ausgestattet. Im Anschluss an die Terrasse findet man den schönen Whirlpool sowie eine große Rasenfläche für Spiel, Sport und Spaß an der frischen Seeluft. Elektroauto / Hybridauto kann gegen Gebühr geladen werden.

Belangrijke informatie
Populaire filters Wifi
Type vakantiehuisje Vakantiehuis
Over het vakantiehuisje
  • Gelegen inRixö
  • Aankomst vanaf 00:00 tot 00:00
  • Vertrektijd 00:00

Voorzieningen

Dit maakt jouw verblijf onvergetelijk

Faciliteiten
Voorzieningen
  • Afwasmachine
  • Bad
  • Barbecue
  • Douche
  • Koelkast
  • Oven / magnetron
  • Tuin
  • Tv
  • Verwarming
  • Vriezer
  • Wasmachine
  • Wifi
Verblijf
Wellness
  • Bubbelbad / Hot tub

Op de kaart

Alle informatie die je nodig hebt voor de juiste beslissing!

Het weer
Weather Icon 6°C Geheel bewolkt
Minimaal 3°C
Maximaal 6°C
Komende dagen
  • wo. 25 /1° 100%
  • do. 26 /1° 100%
  • vr. 27 /0° 100%
  • za. 28 /0° 100%
  • zo. 29 /2° 100%

Het klimaat in Rixö

Het weer het gehele jaar

Maand Temperatuur (°C) Luchtvochtigheid (%) Neerslagsom (mm)
Januari /-2° 88% 62 mm
Februari /-2° 85% 41 mm
Maart /-1° 81% 44 mm
April 10°/2° 73% 38 mm
Mei 15°/6° 71% 38 mm
Juni 19°/10° 74% 51 mm
Juli 21°/13° 76% 73 mm
Augustus 20°/13° 79% 81 mm
September 16°/10° 81% 67 mm
Oktober 11°/6° 84% 88 mm
November /2° 87% 70 mm
December /-1° 88% 67 mm

Veelgestelde vragen

Antwoorden op de meest gestelde vragen over deze accommodatie

Mag ik mijn huisdieren meenemen naar 8 persoons vakantie huis in Brastad-By Traum?
Nee, het is niet toegestaan om huisdieren mee te nemen naar 8 persoons vakantie huis in Brastad-By Traum
Is er wifi beschikbaar bij 8 persoons vakantie huis in Brastad-By Traum?
Ja, deze accommodatie beschikt over wifi en wifi.
Is er airco aanwezig bij 8 persoons vakantie huis in Brastad-By Traum?
Nee, deze er is op deze accommodatie geen airco aanwezig.
Wat zijn de in- en uitchecktijden voor 8 persoons vakantie huis in Brastad-By Traum?
Inchecken kan vanaf 00:00 en uitchecken tot 00:00.
Heeft 8 persoons vakantie huis in Brastad-By Traum een bad?
Ja, 8 persoons vakantie huis in Brastad-By Traum beschikt over een bad.
Kan ik mijn auto parkeren bij 8 persoons vakantie huis in Brastad-By Traum?
Nee, het is niet mogelijk om je auto op het terrein van de accommodatie te parkeren.
Kan ik zwemmen bij 8 persoons vakantie huis in Brastad-By Traum?
Nee, er zijn geen zwemfaciliteiten 8 persoons vakantie huis in Brastad-By Traum aanwezig.

Andere accommodaties in de buurt

Misschien vind je dit ook leuk

Direct te boeken
6 persoons vakantie huis in Brastad-By Traum
Direct te boeken
4 sterren vakantie huis in Brastad-By Traum
4 sterren vakantie huis in Brastad-By Traum
Koelkast Wasmachine Vriezer Oven / magnetron
Direct te boeken
4 Personen vakantie huis in LYSEKIL
Direct te boeken
6 Personen vakantie huis in LYSEKIL
6 Personen vakantie huis in LYSEKIL
Koelkast Wasmachine Vriezer Oven / magnetron
Direct te boeken
6 persoons vakantie huis in LYSEKIL-By Traum
6 persoons vakantie huis in LYSEKIL-By Traum
Koelkast Wasmachine Vriezer Oven / magnetron
Direct te boeken
5 persoons vakantie huis in KUNGSHAMN
Direct te boeken
6 Personen vakantie huis in KUNGSHAMN
6 Personen vakantie huis in KUNGSHAMN
Koelkast Vriezer Oven / magnetron Wifi
Direct te boeken
5 persoons vakantie huis in KUNGSHAMN-By Traum
Plaatsen in de buurt
8 persoons vakantie huis in Brastad-By Traum

Zweden - Västra Götaland - Rixö

Fotoboek
Filteren:
badkamers
8 persoons vakantie huis in Brastad-By Traum - Buitenlucht
8 persoons vakantie huis in Brastad-By Traum - Buitenlucht
8 persoons vakantie huis in Brastad-By Traum - Buitenlucht
8 persoons vakantie huis in Brastad-By Traum - Binnen
8 persoons vakantie huis in Brastad-By Traum - Binnen
8 persoons vakantie huis in Brastad-By Traum - Binnen
8 persoons vakantie huis in Brastad-By Traum - Binnen
8 persoons vakantie huis in Brastad-By Traum - Binnen
8 persoons vakantie huis in Brastad-By Traum - Binnen
8 persoons vakantie huis in Brastad-By Traum - Binnen
8 persoons vakantie huis in Brastad-By Traum - Binnen
8 persoons vakantie huis in Brastad-By Traum - Binnen
8 persoons vakantie huis in Brastad-By Traum - Binnen
8 persoons vakantie huis in Brastad-By Traum - Binnen
8 persoons vakantie huis in Brastad-By Traum - Binnen
8 persoons vakantie huis in Brastad-By Traum - Niet-getagd
8 persoons vakantie huis in Brastad-By Traum - Niet-getagd
8 persoons vakantie huis in Brastad-By Traum - Niet-getagd
8 persoons vakantie huis in Brastad-By Traum - Niet-getagd
8 persoons vakantie huis in Brastad-By Traum - Plattegrond
1/ 20