Logo Vakantiehuisjes.be Logo Vakantiehuisjes.be
  • Actueel & betrouwbaar
  • Direct boeken
  • Lage prijzen

7 persoons vakantie huis in DOCKSTA

|
Bekijk op kaart
7 persoons vakantie huis in DOCKSTA
7 persoons vakantie huis in DOCKSTA
7 persoons vakantie huis in DOCKSTA
+ 25 foto's
7 persoons vakantie huis in DOCKSTA
€108,43 v.a. prijs per nacht

De laagste prijsgarantie!

Heb je een vraag over dit vakantiehuis?

Neem contact met ons op

  • Wasmachine
  • Wifi
  • Koelkast
  • Vriezer
  • Barbecue
  • Oven / magnetron
  • Douche
  • Kinderstoel
Alle voorzieningen

Omschrijving

7 persoons vakantie huis in DOCKSTA

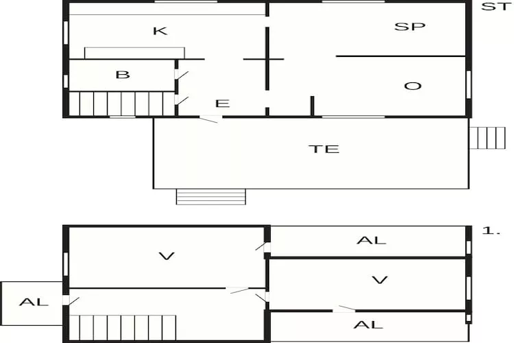
Willkommen im hohen Norden, in Germesta bei Docksta, mitten in der reizvollen Landschaft Höga Kusten in der Region Väster Norrland. Hier bewohnen Sie ein geräumiges Wohnhaus aus den 50er Jahren, mit weiß verputzter Fassade und ruhiger, ländlicher Lage. Das Haus liegt reizvoll, mit der Natur in unmittelbarer Nähe. Dennoch erreicht man auch zu Fuß das kleine Ortszentrum von Docksta, mit u.a. Lebensmittelgeschäft sowie Café mit Bio-Schokolade und einer Schuhfabrik, in der die Hausschuhe Dockstatoffeln hergestellt werden. Das Haus stellt insgesamt 7 Betten, verteilt auf zwei größere Schlafzimmer sowie zwei kleinere Alkoven unter der Dachschräge zur Verfügung. Es gibt auch eine geräumige Küche mit Herd, Backofen, Mikrowelle, Kühl-/Gefrierschrank sowie Esstisch für vier Personen und Küchenbank. Im angrenzenden Speisesaal gibt es Platz für alle sieben Personen. Im Wohnzimmer steht ein Fernseher mit Chromecast, zudem gibt es ein großes Sofa und einen gemütlichen Kaminofen. Außerdem kleineres Badezimmer mit Dusche, WC und Waschbecken im Haus. Waschmaschine und Wäschetrockner sind in einem Waschkeller untergebracht. WLAN mit guter Kapazität im Haus. Auf dem zugehörigen Naturgrundtück findet man eine Rasenfläche für Spiel, Sport und Spaß im Freien vor. Außerdem gibt es zwei Hängematten und zwei Fahrräder zum Ausleihen (ohne Gewähr) sowie einige Sonnenliegen und eine geräumige Terrassenfläche mit Gartenmöbeln, Sonnenschirm und Grill. Das Haus verfügt über WLAN mit unbegrenzter Brandung. Vom Haus aus sieht man die Straße hinunter zur etwa 7 Minuten Fußweg entfernten Küste, an der man baden kann. Überquert man die E4, gelangt man direkt zum Wanderweg Höga Kusten Leden, der insgesamt 128 km lang und in 13 Etappen unterteilt ist. Dies ist einer der schönsten Wanderwege Schwedens! Die Aussicht oben vom Skuletoppen ist großartig! Auch Skallberget in Gideå ist mit seiner etwa 7.000 Jahre alten Grotte einen Abstecher wert. Das Ausflugsziel Naturum liegt ca. 2,6 km nördlich vom Haus und bildet den Ausgangspunkt für einen Besuch im Nationalpark Höga Kusten, der zum Welterbe gehört. Falls Sie gerne angeln, gibt es in der Umgebung diverse Möglichkeiten und auch Bootsfahrten entlang der Küste sind eine Option. Im Sommer verkehrt ab Docksta eine kleine Fähre nach Ulvön und Trysunda. Das nächste Schwimmbad findet man etwa 5 km weiter nördlich im Ort Örnsköldsvik. Dieses Reiseziel bietet sich für Urlauber an, die die besondere Landschaft der Region Höga Kusten erkunden und sich in der Natur erholen möchten.

Belangrijke informatie
Populaire filters Wifi
Type vakantiehuisje Vakantiehuis
Over het vakantiehuisje
  • Gelegen inVibyggerå
  • Aankomst vanaf 00:00 tot 00:00
  • Vertrektijd 00:00

Voorzieningen

Dit maakt jouw verblijf onvergetelijk

Faciliteiten
Voorzieningen
  • Barbecue
  • Douche
  • Koelkast
  • Openhaard
  • Oven / magnetron
  • Tv
  • Vriezer
  • Wasmachine
  • Wifi

Op de kaart

Alle informatie die je nodig hebt voor de juiste beslissing!

Het weer
Weather Icon 7°C Plaatselijke regen in de omgeving
Minimaal 6°C
Maximaal 7°C
Komende dagen
  • vr. 15 12°/4° 100%
  • za. 16 15°/2° 0%
  • zo. 17 15°/5° 100%
  • ma. 18 18°/3° 85%
  • di. 19 17°/6° 0%

Het klimaat in Germesta

Het weer het gehele jaar

Maand Temperatuur (°C) Luchtvochtigheid (%) Neerslagsom (mm)
Januari -1°/-5° 91% 41 mm
Februari -1°/-6° 89% 31 mm
Maart /-4° 85% 32 mm
April /0° 77% 34 mm
Mei 13°/4° 70% 38 mm
Juni 18°/9° 70% 54 mm
Juli 21°/12° 73% 67 mm
Augustus 20°/11° 78% 69 mm
September 15°/7° 81% 56 mm
Oktober /3° 87% 56 mm
November /-1° 91% 49 mm
December /-4° 92% 44 mm

Veelgestelde vragen

Antwoorden op de meest gestelde vragen over deze accommodatie

Mag ik mijn huisdieren meenemen naar 7 persoons vakantie huis in DOCKSTA?
Ja, je mag 2 huisdieren meenemen naar 7 persoons vakantie huis in DOCKSTA
Is er wifi beschikbaar bij 7 persoons vakantie huis in DOCKSTA?
Ja, deze accommodatie beschikt over wifi en wifi.
Is er airco aanwezig bij 7 persoons vakantie huis in DOCKSTA?
Nee, deze er is op deze accommodatie geen airco aanwezig.
Wat zijn de in- en uitchecktijden voor 7 persoons vakantie huis in DOCKSTA?
Inchecken kan vanaf 00:00 en uitchecken tot 00:00.
Heeft 7 persoons vakantie huis in DOCKSTA een bad?
Nee, 7 persoons vakantie huis in DOCKSTA heeft geen bad.
Kan ik mijn auto parkeren bij 7 persoons vakantie huis in DOCKSTA?
Nee, het is niet mogelijk om je auto op het terrein van de accommodatie te parkeren.
Kan ik zwemmen bij 7 persoons vakantie huis in DOCKSTA?
Nee, er zijn geen zwemfaciliteiten 7 persoons vakantie huis in DOCKSTA aanwezig.
Plaatsen in de buurt
7 persoons vakantie huis in DOCKSTA

Zweden - Västernorrland - Vibyggerå

Fotoboek
Filteren:
badkamers
7 persoons vakantie huis in DOCKSTA - Buitenlucht
7 persoons vakantie huis in DOCKSTA - Buitenlucht
7 persoons vakantie huis in DOCKSTA - Buitenlucht
7 persoons vakantie huis in DOCKSTA - Binnen
7 persoons vakantie huis in DOCKSTA - Binnen
7 persoons vakantie huis in DOCKSTA - Binnen
7 persoons vakantie huis in DOCKSTA - Binnen
7 persoons vakantie huis in DOCKSTA - Binnen
7 persoons vakantie huis in DOCKSTA - Binnen
7 persoons vakantie huis in DOCKSTA - Binnen
7 persoons vakantie huis in DOCKSTA - Binnen
7 persoons vakantie huis in DOCKSTA - Binnen
7 persoons vakantie huis in DOCKSTA - Binnen
7 persoons vakantie huis in DOCKSTA - Binnen
7 persoons vakantie huis in DOCKSTA - Binnen
7 persoons vakantie huis in DOCKSTA - Binnen
7 persoons vakantie huis in DOCKSTA - Binnen
7 persoons vakantie huis in DOCKSTA - Binnen
7 persoons vakantie huis in DOCKSTA - Binnen
7 persoons vakantie huis in DOCKSTA - Binnen
7 persoons vakantie huis in DOCKSTA - Binnen
7 persoons vakantie huis in DOCKSTA - Binnen
7 persoons vakantie huis in DOCKSTA - Binnen
7 persoons vakantie huis in DOCKSTA - Binnen
7 persoons vakantie huis in DOCKSTA - Binnen
7 persoons vakantie huis in DOCKSTA - Binnen
7 persoons vakantie huis in DOCKSTA - Binnen
7 persoons vakantie huis in DOCKSTA - Plattegrond
1/ 28