Logo Vakantiehuisjes.be Logo Vakantiehuisjes.be
  • Actueel & betrouwbaar
  • Direct boeken
  • Lage prijzen

Casa Lina

|
Bekijk op kaart
Casa Lina
Casa Lina
Casa Lina
+ 12 foto's
Casa Lina
€99,71 v.a. prijs per nacht

De laagste prijsgarantie!

Heb je een vraag over dit vakantiehuis?

Neem contact met ons op

  • Wasmachine
  • Wifi
  • Vriezer
  • Verwarming
Alle voorzieningen

Omschrijving

Binnen

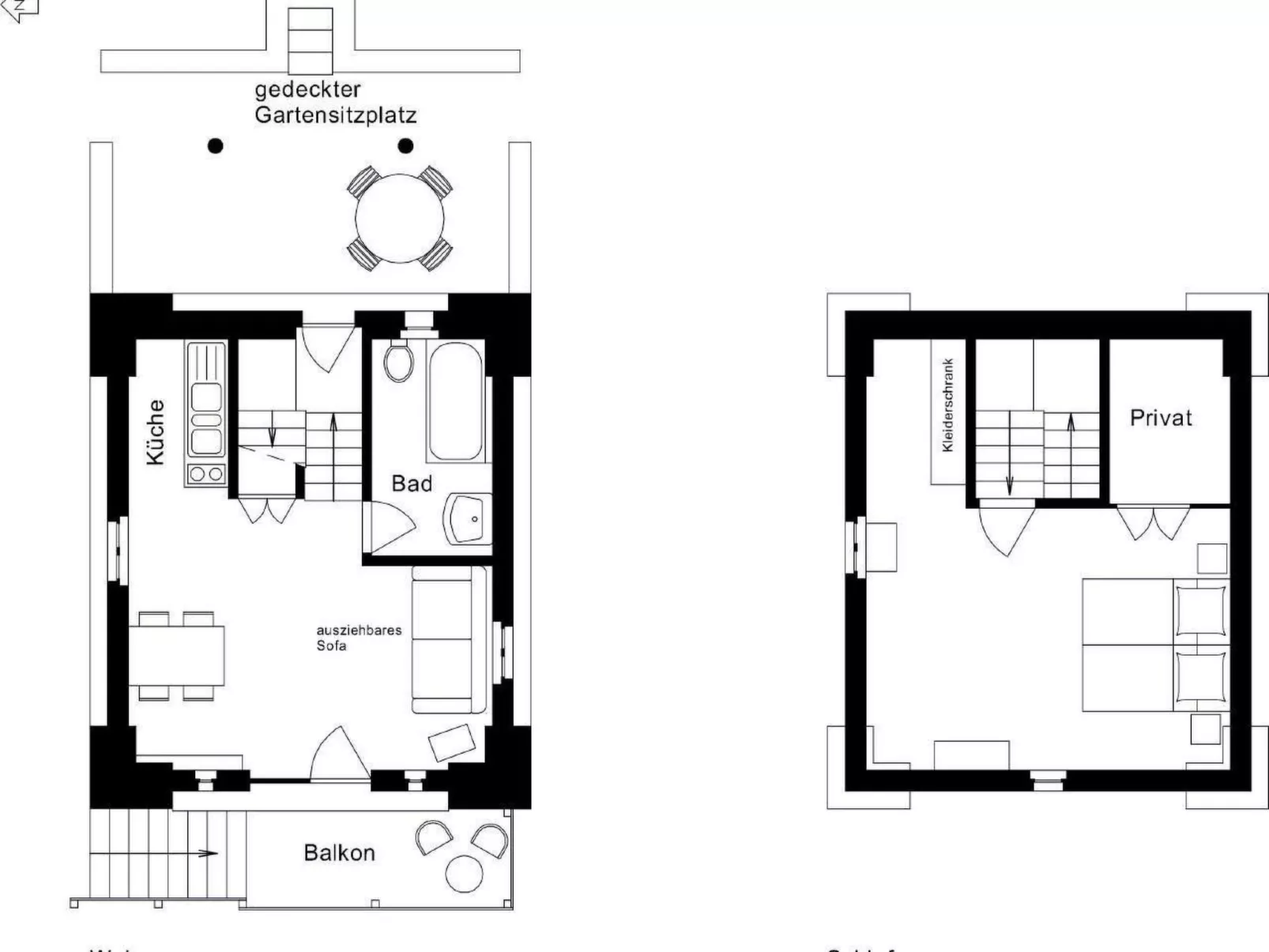
Welcome to your personal retreat in Bondo, Canton Graubünden. Casa Lina, a stable barn lovingly converted into a holiday home, offers the perfect blend of seclusion and comfort for up to 3 people who want to experience the splendour of the mountains and valleys of Graubünden. Here you will find a place of tranquillity and refreshing simplicity, complemented by cosy furnishings that will make your stay unforgettable.Inside, you will find a well thought-out living concept that skilfully captures the charm and character of the mountain hut. A compact bedroom offers enough space for up to two people, with the option of adding an extra bed or cot as required. The bathroom is equipped with a practical bathtub with shower attachment. For added convenience, there is a washing machine for communal use in the building and a tumble dryer for sole use in the holiday home.The exterior design of Casa Lina is a true oasis of relaxation. An inviting east-facing terrace and a charming west-facing balcony in front of the entrance provide ideal spots for relaxing mornings or cosy evenings. The garden for exclusive use not only provides an idyllic backdrop for your relaxation, but also direct access to the breathtaking beauty and tranquillity of the surrounding mountains and valleys.Despite the secluded location of the detached holiday home, you will not experience any disadvantages in terms of amenities. The nearest post bus stop is just a few steps away, making it easy to explore the region. A cosy grocery store just 250 metres away will provide you with everything you need for your stay. Although Casa Lina does not have its own car park, there are plenty of public parking spaces in the immediate vicinity.At Casa Lina you will find a truly unique place for your next holiday. This charming holiday home combines a traditional ambience with all the facilities and comfort you need for a refreshing stay in the beautiful landscape of the canton of Graubünden. Immerse yourself in unspoilt nature, discover the local culture and unwind in this little paradise.

Buiten

perceeloppervlakte: 1800m². bouwjaar: 1745.

Belangrijke informatie
Populaire filters Wifi
Over het vakantiehuisje
  • Gelegen inBregaglia
  • Aankomst vanaf 15:00 tot 18:00
  • Vertrektijd 10:00

Voorzieningen

Dit maakt jouw verblijf onvergetelijk

Faciliteiten
Voorzieningen
  • Verwarming
  • Vriezer
  • Wasmachine
  • Wifi

Op de kaart

Alle informatie die je nodig hebt voor de juiste beslissing!

Het weer
Weather Icon -6°C Mist
Minimaal -12°C
Maximaal 0°C
Komende dagen
  • do. 19 /-13° 100%
  • vr. 20 /-14° 0%
  • za. 21 -1°/-12° 100%
  • zo. 22 /-13° 0%
  • ma. 23 /-11° 100%

Het klimaat in La Porta

Het weer het gehele jaar

Maand Temperatuur (°C) Luchtvochtigheid (%) Neerslagsom (mm)
Januari /-6° 75% 60 mm
Februari /-5° 72% 55 mm
Maart /-2° 68% 60 mm
April 11°/1° 65% 70 mm
Mei 15°/5° 68% 90 mm
Juni 19°/9° 70% 110 mm
Juli 21°/11° 72% 130 mm
Augustus 20°/11° 73% 120 mm
September 16°/8° 74% 90 mm
Oktober 12°/4° 76% 80 mm
November /-1° 77% 70 mm
December /-5° 76% 65 mm

Veelgestelde vragen

Antwoorden op de meest gestelde vragen over deze accommodatie

Mag ik mijn huisdieren meenemen naar Casa Lina?
Ja, je mag 1 huisdieren meenemen naar Casa Lina
Is er wifi beschikbaar bij Casa Lina?
Ja, deze accommodatie beschikt over wifi en wifi.
Is er airco aanwezig bij Casa Lina?
Nee, deze er is op deze accommodatie geen airco aanwezig.
Wat zijn de in- en uitchecktijden voor Casa Lina?
Inchecken kan vanaf 15:00 en uitchecken tot 10:00.
Heeft Casa Lina een bad?
Nee, Casa Lina heeft geen bad.
Kan ik mijn auto parkeren bij Casa Lina?
Nee, het is niet mogelijk om je auto op het terrein van de accommodatie te parkeren.
Kan ik zwemmen bij Casa Lina?
Nee, er zijn geen zwemfaciliteiten Casa Lina aanwezig.

Andere accommodaties in de buurt

Misschien vind je dit ook leuk

Direct te boeken
Malussi
Malussi
Wasmachine Wifi Vriezer Oven / magnetron
Direct te boeken
Casa Molinari
Casa Molinari
Wifi Vriezer Oven / magnetron Douche
Direct te boeken
Cäsa Picenoni
Cäsa Picenoni
Wasmachine Wifi Vriezer Oven / magnetron
Direct te boeken
Einzimmerwohnung mit Bergblick
Einzimmerwohnung mit Bergblick
Wasmachine Wifi Vriezer Verwarming
Direct te boeken
Palü
Palü
Wasmachine Wifi Vriezer Oven / magnetron
Direct te boeken
Appartamento FAMIGLIA TONDINI
Appartamento FAMIGLIA TONDINI
Wasmachine Wifi Barbecue Parkeerplaats
Direct te boeken
Pavillon Castagneto
Pavillon Castagneto
Afwasmachine Douche Parkeerplaats
Direct te boeken
Casa Maroli
Casa Maroli
Wasmachine Wifi Vriezer Barbecue
Plaatsen in de buurt
Casa Lina

Zwitserland - Graubünden - Bregaglia

Fotoboek
Filteren:
badkamers
Casa Lina - Buiten
Casa Lina - Buiten
Casa Lina - Buiten
Casa Lina - Buiten
Casa Lina - Buiten
Casa Lina - Binnen
Casa Lina - Binnen
Casa Lina - Binnen
Casa Lina - Binnen
Casa Lina - Image-tags.info
Casa Lina - Image-tags.info
Casa Lina - Image-tags.info
Casa Lina - Image-tags.info
Casa Lina - Image-tags.info
Casa Lina - Buiten
1/ 15