Logo Vakantiehuisjes.be Logo Vakantiehuisjes.be
  • Actueel & betrouwbaar
  • Direct boeken
  • Lage prijzen

2 persoons vakantie huis in Læsø-By Traum

|
Bekijk op kaart
2 persoons vakantie huis in Læsø-By Traum
2 persoons vakantie huis in Læsø-By Traum
2 persoons vakantie huis in Læsø-By Traum
+ 29 foto's
2 persoons vakantie huis in Læsø-By Traum
€0,00 v.a. prijs per nacht

De laagste prijsgarantie!

Heb je een vraag over dit vakantiehuis?

Neem contact met ons op

  • Wifi
  • Vakantiehuis
  • Afwasmachine
  • Wasmachine
  • Verwarming
  • Oven / magnetron
  • Bad
  • Barbecue
Alle voorzieningen

Omschrijving

2 persoons vakantie huis in Læsø-By Traum

Modernes Ferienhaus auf einem großen, schön abgelegenen Rasengrundstück mit schützenden Bäumen ringsum. Liegt in kurzer Entfernung zur Küste sowie zum Fischerort Østerby, der mit seinem attraktiven Strand, guten Angelbedingungen und kleinem Yachthafen im Sommer viele Segler und Touristen anzieht. Das hell und wohnlich eingerichtete Ferienhaus wurde 2018 instand gesetzt und bietet einen gut ausgestatteten, geräumigen Küchen-/Wohnbereich mit Essecke und Kaminofen. Davor liegt die verglaste Veranda, die sich als Essplatz an kühleren Abenden anbietet. Außerdem helles Badezimmer, großes Schlafzimmer und praktische Helfer wie Geschirrspüler, Waschmaschine und Wäschetrockner im Haus, wobei die beiden letztgenannten in einem Schuppen nebenan untergebracht sind. Eine moderne Wärmepumpe sorgt energieeffizient für ein allzeit behagliches Innenklima. Für sonnige Tage steht im Außenbereich eine offene Holzterrasse bereit. Genießen Sie dort die Ruhe und den Ausblick in die grüne Umgebung.A refundable deposit might be charged closer to your check-in date. The security deposit ensures a smooth stay and covers any additional services or consumption charges.This deposit covers utilities consumed during your stay and any additional services that may be taken.The final amount will be adjusted based on actual meter readings, actual usage of extra services, and any remaining balance will be refunded within 21 days after checkout.This deposit simply acts as a prepayment for charges that  you would anyways pay for, ensuring a seamless stay and check-out experience.

Belangrijke informatie
Populaire filters Wifi
Type vakantiehuisje Vakantiehuis
Over het vakantiehuisje
  • Gelegen inLæsø
  • Aankomst vanaf 00:00 tot 00:00
  • Vertrektijd 00:00

Voorzieningen

Dit maakt jouw verblijf onvergetelijk

Faciliteiten
Voorzieningen
  • Afwasmachine
  • Bad
  • Barbecue
  • Koelkast
  • Oven / magnetron
  • Tv
  • Verwarming
  • Vriezer
  • Wasmachine
  • Wifi

Op de kaart

Alle informatie die je nodig hebt voor de juiste beslissing!

Het weer
Weather Icon 13°C Plaatselijke regen in de omgeving
Minimaal 10°C
Maximaal 14°C
Komende dagen
  • do. 16 14°/9° 84%
  • vr. 17 10°/8° 100%
  • za. 18 10°/5° 100%
  • zo. 19 11°/7° 79%
  • ma. 20 11°/7° 68%

Het klimaat in Læsø

Het weer het gehele jaar

Maand Temperatuur (°C) Luchtvochtigheid (%) Neerslagsom (mm)
Januari /-1° 85% 47 mm
Februari /-1° 83% 33 mm
Maart /0° 80% 33 mm
April /2° 77% 29 mm
Mei 14°/6° 75% 34 mm
Juni 17°/10° 78% 49 mm
Juli 19°/13° 80% 59 mm
Augustus 19°/13° 81% 65 mm
September 16°/10° 83% 60 mm
Oktober 12°/7° 85% 68 mm
November /3° 86% 65 mm
December /1° 87% 56 mm

Veelgestelde vragen

Antwoorden op de meest gestelde vragen over deze accommodatie

Mag ik mijn huisdieren meenemen naar 2 persoons vakantie huis in Læsø-By Traum?
Ja, je mag 2 huisdieren meenemen naar 2 persoons vakantie huis in Læsø-By Traum
Is er wifi beschikbaar bij 2 persoons vakantie huis in Læsø-By Traum?
Ja, deze accommodatie beschikt over wifi en wifi.
Is er airco aanwezig bij 2 persoons vakantie huis in Læsø-By Traum?
Nee, deze er is op deze accommodatie geen airco aanwezig.
Wat zijn de in- en uitchecktijden voor 2 persoons vakantie huis in Læsø-By Traum
Inchecken kan vanaf 00:00 en uitchecken tot 00:00.
Heeft 2 persoons vakantie huis in Læsø-By Traum een bad?
Ja, 2 persoons vakantie huis in Læsø-By Traum beschikt over een bad.
Kan ik mijn auto parkeren bij 2 persoons vakantie huis in Læsø-By Traum?
Nee, het is niet mogelijk om je auto op het terrein van de accommodatie te parkeren.
Kan ik zwemmen bij 2 persoons vakantie huis in Læsø-By Traum?
Nee, er zijn geen zwemfaciliteiten 2 persoons vakantie huis in Læsø-By Traum aanwezig.

Andere accommodaties in de buurt

Misschien vind je dit ook leuk

Direct te boeken
6 persoons vakantie huis in Læsø-By Traum
6 persoons vakantie huis in Læsø-By Traum
Afwasmachine Wasmachine Verwarming Oven / magnetron
Direct te boeken
14 persoons vakantie huis in Læsø
Direct te boeken
6 persoons vakantie huis in Læsø-By Traum
Direct te boeken
8 persoons vakantie huis in Læsø
8 persoons vakantie huis in Læsø
Wifi Vakantiehuis Afwasmachine Wasmachine
Direct te boeken
"Henni" - 2.5km from the sea
Direct te boeken
6 persoons vakantie huis in Læsø-By Traum
Direct te boeken
"Lycka" - 3km from the sea
"Lycka" - 3km from the sea
Wasmachine Barbecue Verwarming Douche
Direct te boeken
5 sterren vakantie huis in Læsø-By Traum
5 sterren vakantie huis in Læsø-By Traum
Afwasmachine Wasmachine Verwarming Oven / magnetron
Plaatsen in de buurt
2 persoons vakantie huis in Læsø-By Traum

Denemarken - Noord-Jutland - Læsø

Fotoboek
Filteren:
badkamers
2 persoons vakantie huis in Læsø-By Traum-Buitenlucht
2 persoons vakantie huis in Læsø-By Traum-Buitenlucht
2 persoons vakantie huis in Læsø-By Traum-Buitenlucht
2 persoons vakantie huis in Læsø-By Traum-Buitenlucht
2 persoons vakantie huis in Læsø-By Traum-Buitenlucht
2 persoons vakantie huis in Læsø-By Traum-Buitenlucht
2 persoons vakantie huis in Læsø-By Traum-Buitenlucht
2 persoons vakantie huis in Læsø-By Traum-Buitenlucht
2 persoons vakantie huis in Læsø-By Traum-Buitenlucht
2 persoons vakantie huis in Læsø-By Traum-Binnen
2 persoons vakantie huis in Læsø-By Traum-Binnen
2 persoons vakantie huis in Læsø-By Traum-Binnen
2 persoons vakantie huis in Læsø-By Traum-Binnen
2 persoons vakantie huis in Læsø-By Traum-Binnen
2 persoons vakantie huis in Læsø-By Traum-Binnen
2 persoons vakantie huis in Læsø-By Traum-Uitzicht
2 persoons vakantie huis in Læsø-By Traum-Binnen
2 persoons vakantie huis in Læsø-By Traum-Binnen
2 persoons vakantie huis in Læsø-By Traum-Binnen
2 persoons vakantie huis in Læsø-By Traum-Uitzicht
2 persoons vakantie huis in Læsø-By Traum-Binnen
2 persoons vakantie huis in Læsø-By Traum-Uitzicht
2 persoons vakantie huis in Læsø-By Traum-Binnen
2 persoons vakantie huis in Læsø-By Traum-Uitzicht
2 persoons vakantie huis in Læsø-By Traum-Binnen
2 persoons vakantie huis in Læsø-By Traum-Uitzicht
2 persoons vakantie huis in Læsø-By Traum-Binnen
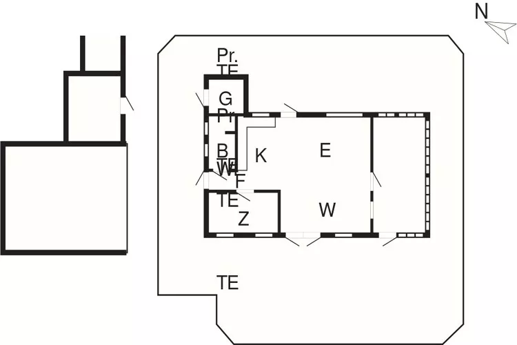
2 persoons vakantie huis in Læsø-By Traum-Plattegrond
2 persoons vakantie huis in Læsø-By Traum-Binnen
2 persoons vakantie huis in Læsø-By Traum-Uitzicht
2 persoons vakantie huis in Læsø-By Traum-Plattegrond
2 persoons vakantie huis in Læsø-By Traum-Uitzicht
1/ 32