Logo Vakantiehuisjes.be Logo Vakantiehuisjes.be
  • Actueel & betrouwbaar
  • Direct boeken
  • Lage prijzen

6 persoons vakantie huis in Guldborg-By Traum

|
Bekijk op kaart
6 persoons vakantie huis in Guldborg-By Traum
6 persoons vakantie huis in Guldborg-By Traum
6 persoons vakantie huis in Guldborg-By Traum
+ 38 foto's
6 persoons vakantie huis in Guldborg-By Traum
€107,00 v.a. prijs per nacht

De laagste prijsgarantie!

Heb je een vraag over dit vakantiehuis?

Neem contact met ons op

  • Afwasmachine
  • Wasmachine
  • Vriezer
  • Verwarming
  • Tv
  • Douche
  • Vakantiehuis
  • Tuin
Alle voorzieningen

Omschrijving

6 persoons vakantie huis in Guldborg-By Traum

Dieses Ferienhaus mit Reetdach liegt sehr malerisch und bietet von der Terrasse in Sakskøbing Ausblick bis zum Wasser. Zum Ferienhaus gehört ein großes Grundstück, dessen hinterer Teil als Vogelschutzgebiet ausgewiesen und dennoch begehbar ist. Der Rest des Gartens ist sehr gemütlich, mit den alten Rosen und Platz für Ballspiele und Sonnenbäder. Im Haus ein Schlafzimmer im Erdgeschoss und zwei Schlafzimmern im ersten Stock. Alle Schlafzimmer haben eine schöne Größe. Im ersten Stock gibt es auch einen großen Gemeinschaftsraum, in dem Sie lesen, Spiele spielen etc. haben können. Ausgang zur Terrasse. Großer Küchen-/Essbereich mit Platz für die ganze Familie. Keine Vermietung an Jugendgruppen erwünscht!A refundable deposit might be charged closer to your check-in date. The security deposit ensures a smooth stay and covers any additional services or consumption charges.This deposit covers utilities consumed during your stay and any additional services that may be taken.The final amount will be adjusted based on actual meter readings, actual usage of extra services, and any remaining balance will be refunded within 21 days after checkout.This deposit simply acts as a prepayment for charges that  you would anyways pay for, ensuring a seamless stay and check-out experience.

Belangrijke informatie
Populaire filters Wifi
Type vakantiehuisje Vakantiehuis
Over het vakantiehuisje
  • Gelegen inGuldborgsund
  • Aankomst vanaf 16:00 tot 16:00
  • Vertrektijd 10:00

Voorzieningen

Dit maakt jouw verblijf onvergetelijk

Faciliteiten
Voorzieningen
  • Afwasmachine
  • Douche
  • Koelkast
  • Oven / magnetron
  • Tuin
  • Tv
  • Verwarming
  • Vriezer
  • Wasmachine
  • Wifi

Op de kaart

Alle informatie die je nodig hebt voor de juiste beslissing!

Het weer
Weather Icon 8°C Zonnig
Minimaal 3°C
Maximaal 8°C
Komende dagen
  • za. 04 10°/6° 100%
  • zo. 05 10°/5° 100%
  • ma. 06 /4° 0%
  • di. 07 10°/3° 0%
  • wo. 08 /3° 0%

Het klimaat in Vigsnæs

Het weer het gehele jaar

Maand Temperatuur (°C) Luchtvochtigheid (%) Neerslagsom (mm)
Januari /-1° 85% 45 mm
Februari /-1° 81% 35 mm
Maart /1° 78% 40 mm
April 12°/3° 74% 32 mm
Mei 16°/7° 74% 38 mm
Juni 19°/11° 74% 50 mm
Juli 21°/13° 76% 62 mm
Augustus 21°/13° 78% 65 mm
September 17°/10° 80% 55 mm
Oktober 13°/7° 83% 55 mm
November /3° 86% 54 mm
December /0° 87% 53 mm

Veelgestelde vragen

Antwoorden op de meest gestelde vragen over deze accommodatie

Mag ik mijn huisdieren meenemen naar 6 persoons vakantie huis in Guldborg-By Traum?
Ja, je mag 2 huisdieren meenemen naar 6 persoons vakantie huis in Guldborg-By Traum
Is er wifi beschikbaar bij 6 persoons vakantie huis in Guldborg-By Traum?
Ja, deze accommodatie beschikt over wifi en wifi.
Is er airco aanwezig bij 6 persoons vakantie huis in Guldborg-By Traum?
Nee, deze er is op deze accommodatie geen airco aanwezig.
Wat zijn de in- en uitchecktijden voor 6 persoons vakantie huis in Guldborg-By Traum?
Inchecken kan vanaf 16:00 en uitchecken tot 10:00.
Heeft 6 persoons vakantie huis in Guldborg-By Traum een bad?
Nee, 6 persoons vakantie huis in Guldborg-By Traum heeft geen bad.
Kan ik mijn auto parkeren bij 6 persoons vakantie huis in Guldborg-By Traum?
Nee, het is niet mogelijk om je auto op het terrein van de accommodatie te parkeren.
Kan ik zwemmen bij 6 persoons vakantie huis in Guldborg-By Traum?
Nee, er zijn geen zwemfaciliteiten 6 persoons vakantie huis in Guldborg-By Traum aanwezig.

Andere accommodaties in de buurt

Misschien vind je dit ook leuk

Direct te boeken
"Rouwen" - 1km from the sea
"Rouwen" - 1km from the sea
Wasmachine Vriezer Barbecue Tv
Direct te boeken
"Ilze" - 20m from the sea
"Ilze" - 20m from the sea
Wasmachine Vriezer Barbecue Verwarming
Direct te boeken
Gezellig vakantiehuis met hottub
Gezellig vakantiehuis met hottub
Wifi Vriezer Vrijstaand Koelkast
Direct te boeken
"Arise" - 700m from the sea
"Arise" - 700m from the sea
Vriezer Verwarming Tv Douche
Direct te boeken
"Esther" - 700m from the sea
"Esther" - 700m from the sea
Vriezer Tv Verwarming Douche
Direct te boeken
10 Personen vakantie huis in Maribo
10 Personen vakantie huis in Maribo
Koelkast Wasmachine Vriezer Oven / magnetron
Direct te boeken
"Eddy" - 50m from the sea
"Eddy" - 50m from the sea
Wasmachine Vriezer Barbecue Tv
Direct te boeken
"Holmwith" - 200m from the sea
"Holmwith" - 200m from the sea
Vriezer Barbecue Verwarming Tv
Plaatsen in de buurt
6 persoons vakantie huis in Guldborg-By Traum

Denemarken - Seeland - Guldborgsund

Fotoboek
Filteren:
badkamers
6 persoons vakantie huis in Guldborg-By Traum - Buitenlucht
6 persoons vakantie huis in Guldborg-By Traum - Niet-getagd
6 persoons vakantie huis in Guldborg-By Traum - Niet-getagd
6 persoons vakantie huis in Guldborg-By Traum - Waterzicht
6 persoons vakantie huis in Guldborg-By Traum - Waterzicht
6 persoons vakantie huis in Guldborg-By Traum - Waterzicht
6 persoons vakantie huis in Guldborg-By Traum - Waterzicht
6 persoons vakantie huis in Guldborg-By Traum - Waterzicht
6 persoons vakantie huis in Guldborg-By Traum - Waterzicht
6 persoons vakantie huis in Guldborg-By Traum - Waterzicht
6 persoons vakantie huis in Guldborg-By Traum - Waterzicht
6 persoons vakantie huis in Guldborg-By Traum - Waterzicht
6 persoons vakantie huis in Guldborg-By Traum - Binnen
6 persoons vakantie huis in Guldborg-By Traum - Binnen
6 persoons vakantie huis in Guldborg-By Traum - Binnen
6 persoons vakantie huis in Guldborg-By Traum - Binnen
6 persoons vakantie huis in Guldborg-By Traum - Binnen
6 persoons vakantie huis in Guldborg-By Traum - Binnen
6 persoons vakantie huis in Guldborg-By Traum - Binnen
6 persoons vakantie huis in Guldborg-By Traum - Binnen
6 persoons vakantie huis in Guldborg-By Traum - Binnen
6 persoons vakantie huis in Guldborg-By Traum - Binnen
6 persoons vakantie huis in Guldborg-By Traum - Binnen
6 persoons vakantie huis in Guldborg-By Traum - Binnen
6 persoons vakantie huis in Guldborg-By Traum - Binnen
6 persoons vakantie huis in Guldborg-By Traum - Binnen
6 persoons vakantie huis in Guldborg-By Traum - Binnen
6 persoons vakantie huis in Guldborg-By Traum - Binnen
6 persoons vakantie huis in Guldborg-By Traum - Binnen
6 persoons vakantie huis in Guldborg-By Traum - Binnen
6 persoons vakantie huis in Guldborg-By Traum - Uitzicht
6 persoons vakantie huis in Guldborg-By Traum - Uitzicht
6 persoons vakantie huis in Guldborg-By Traum - Uitzicht
6 persoons vakantie huis in Guldborg-By Traum - Uitzicht
6 persoons vakantie huis in Guldborg-By Traum - Uitzicht
6 persoons vakantie huis in Guldborg-By Traum - Uitzicht
6 persoons vakantie huis in Guldborg-By Traum - Uitzicht
6 persoons vakantie huis in Guldborg-By Traum - Uitzicht
6 persoons vakantie huis in Guldborg-By Traum - Uitzicht
6 persoons vakantie huis in Guldborg-By Traum - Uitzicht
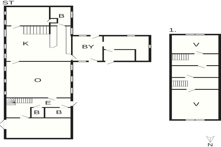
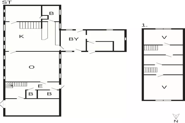
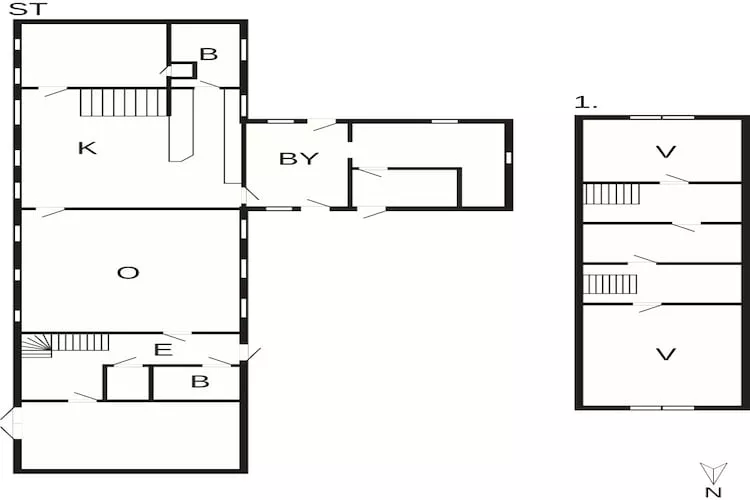
6 persoons vakantie huis in Guldborg-By Traum - Plattegrond
1/ 41