Logo Vakantiehuisjes.be Logo Vakantiehuisjes.be
  • Actueel & betrouwbaar
  • Direct boeken
  • Lage prijzen

Résidence Le Panoramic

|
Bekijk op kaart
Résidence Le Panoramic
Résidence Le Panoramic
Résidence Le Panoramic
+ 20 foto's
Résidence Le Panoramic
€232,57 v.a. prijs per nacht

De laagste prijsgarantie!

Heb je een vraag over dit vakantiehuis?

Neem contact met ons op

  • Afwasmachine
  • Verwarming
  • Tv
  • Parkeerplaats
  • Zwembad
  • Appartement
Alle voorzieningen

Omschrijving

Appartement in Flaine vlakbij skipistes en zwembad

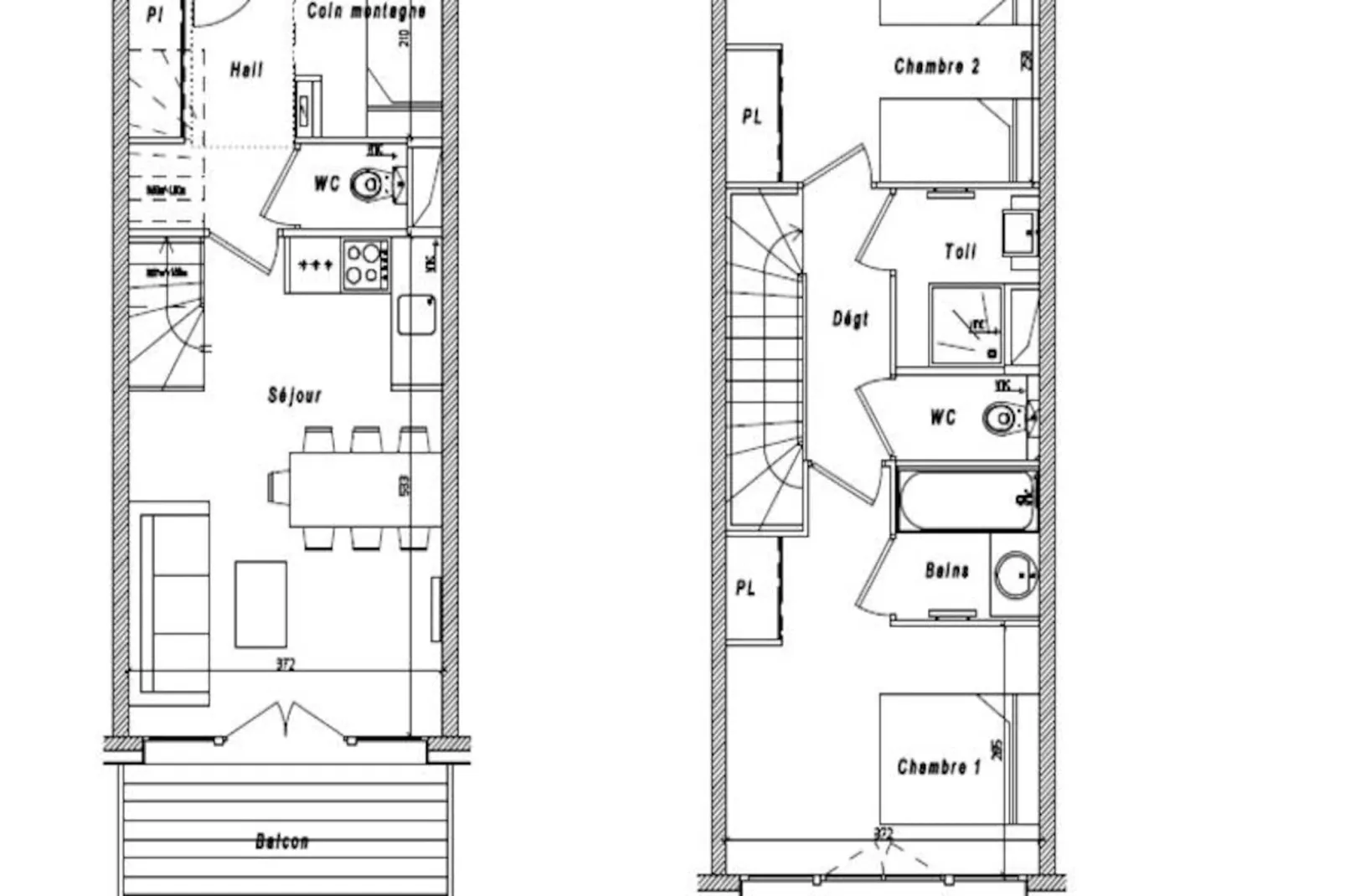
In de serene wijk Flaine Forêt biedt dit charmante duplexappartement een perfect toevluchtsoord in de Alpen, aan de voet van de pistes. Dankzij het balkon op het zuiden wordt u wakker met een prachtig uitzicht op de bergen en geniet u van het gemak van slechts 200 meter van de lokale winkels. Of u nu komt om te skiën in de winter of te wandelen in de zomer, deze residentie plaatst u midden in de actie en biedt tegelijkertijd een oase van rust om te ontspannen.

Dit zorgvuldig ontworpen appartement van 60 vierkante meter biedt plaats aan maximaal zes gasten. Het beschikt over twee knusse slaapkamers – één met een tweepersoonsbed en de andere met twee eenpersoonsbedden – en een extra alkoof met een stapelbed, waardoor het ideaal is voor gezinnen of kleine groepen. De open woonkamer nodigt uit tot ontspanning met een flatscreen-tv, terwijl de moderne keuken, uitgerust met een keramische kookplaat, vaatwasser en magnetron, het bereiden van maaltijden een fluitje van een cent maakt. Het appartement beschikt ook over een badkamer met een bad, een aparte doucheruimte en twee toiletten voor extra gemak.

Gasten genieten van exclusieve toegang tot het binnenzwembad en de jacuzzi van de residentie, perfect om te ontspannen na een dag vol buitenactiviteiten. Voor een extra vleugje luxe zijn de sauna en hamam tegen betaling beschikbaar. In de zomer is bij een verblijf van zes nachten of langer de Flaine Summer Pass inbegrepen, waarmee u toegang krijgt tot diverse spannende activiteiten. Overdekte parkeergelegenheid, skilockers en de nabijheid van de pistes zorgen voor een zorgeloze ervaring.

Of u nu in de winter naar de ongerepte pistes van Flaine gaat of in de zomer naar de bruisende alpine activiteiten, deze accommodatie biedt de perfecte mix van comfort, gemak en onvergetelijke bergcharme.

Belangrijke informatie
Populaire filters Zwembad
Type vakantiehuisje Appartement
Over het vakantiehuisje
  • Gelegen inFlaine
  • Aankomst vanaf 15:00 tot 20:00
  • Vertrektijd 10:00

Voorzieningen

Dit maakt jouw verblijf onvergetelijk

Faciliteiten
Voorzieningen
  • Afwasmachine
  • Oven / magnetron
  • Parkeerplaats
  • Tv
  • Verwarming

Op de kaart

Alle informatie die je nodig hebt voor de juiste beslissing!

Het weer
Weather Icon -1°C Helder
Minimaal -1°C
Maximaal 3°C
Komende dagen
  • vr. 19 /-1° 0%
  • za. 20 /0° 0%
  • zo. 21 /1° 0%
  • ma. 22 /-1° 0%
  • di. 23 -1°/-3° 100%

Het klimaat in Flaine Forêt

Het weer het gehele jaar

Maand Temperatuur (°C) Luchtvochtigheid (%) Neerslagsom (mm)
Januari /-7° 80% 95 mm
Februari /-7° 77% 85 mm
Maart /-5° 74% 85 mm
April /-2° 70% 75 mm
Mei 14°/2° 70% 90 mm
Juni 18°/6° 69% 100 mm
Juli 20°/8° 67% 90 mm
Augustus 20°/8° 68% 90 mm
September 16°/5° 72% 85 mm
Oktober 11°/1° 76% 95 mm
November /-3° 78% 100 mm
December /-6° 81% 110 mm

Veelgestelde vragen

Antwoorden op de meest gestelde vragen over deze accommodatie

Mag ik mijn huisdieren meenemen naar Résidence Le Panoramic?
Nee, het is niet toegestaan om huisdieren mee te nemen naar Résidence Le Panoramic
Is er wifi beschikbaar bij Résidence Le Panoramic?
Nee, er is geen aanwezig op deze accommodatie.
Is er airco aanwezig bij Résidence Le Panoramic?
Nee, deze er is op deze accommodatie geen airco aanwezig.
Wat zijn de in- en uitchecktijden voor Résidence Le Panoramic
Inchecken kan vanaf 15:00 en uitchecken tot 10:00.
Heeft Résidence Le Panoramic een bad?
Nee, Résidence Le Panoramic heeft geen bad.
Kan ik mijn auto parkeren bij Résidence Le Panoramic?
Ja, Résidence Le Panoramic beschikt over een eigen parkeerpaats.
Kan ik zwemmen bij Résidence Le Panoramic?
Ja, Résidence Le Panoramic beschikt over een zwembad.

Andere accommodaties in de buurt

Misschien vind je dit ook leuk

Direct te boeken
Le Panoramic
Le Panoramic
Sauna Wasmachine Tv Verwarming
Direct te boeken
Résidence Odalys Référence Le Panoramic
Direct te boeken
Résidence Odalys Référence Le Panoramic
Direct te boeken
Résidence Capricorne - maeva Home
Résidence Capricorne - maeva Home
Koelkast Oven / magnetron Tv Appartement
Direct te boeken
Résidence Capricorne - maeva Home
Résidence Capricorne - maeva Home
Koelkast Oven / magnetron Tv Appartement
Direct te boeken
Résidence Capricorne -Flaine Réservation- maeva Home
Direct te boeken
Résidence Capricorne -Flaine Réservation- maeva Home
Direct te boeken
Appartements à Flaine
Appartements à Flaine
Wasmachine Koelkast Tv Oven / magnetron
Plaatsen in de buurt
Résidence Le Panoramic

Frankrijk - Auvergne-Rhône-Alpes - Haute-Savoie - Flaine

Fotoboek
Filteren:
badkamers
Résidence Le Panoramic-Niet-getagd
Résidence Le Panoramic-Niet-getagd
Résidence Le Panoramic-Niet-getagd
Résidence Le Panoramic-Niet-getagd
Résidence Le Panoramic-Niet-getagd
Résidence Le Panoramic-Niet-getagd
Résidence Le Panoramic-Niet-getagd
Résidence Le Panoramic-Niet-getagd
Résidence Le Panoramic-Niet-getagd
Résidence Le Panoramic-Niet-getagd
Résidence Le Panoramic-Niet-getagd
Résidence Le Panoramic-Niet-getagd
Résidence Le Panoramic-Niet-getagd
Résidence Le Panoramic-Niet-getagd
Résidence Le Panoramic-Niet-getagd
Résidence Le Panoramic-Niet-getagd
Résidence Le Panoramic-Niet-getagd
Résidence Le Panoramic-Niet-getagd
Résidence Le Panoramic-Niet-getagd
Résidence Le Panoramic-Niet-getagd
Résidence Le Panoramic-Niet-getagd
Résidence Le Panoramic-Niet-getagd
Résidence Le Panoramic-Niet-getagd
1/ 23