Logo Vakantiehuisjes.be Logo Vakantiehuisjes.be
  • Actueel & betrouwbaar
  • Direct boeken
  • Lage prijzen

Chalet Roji

|
Bekijk op kaart
Chalet Roji
Chalet Roji
Chalet Roji
+ 20 foto's
Chalet Roji
€488,50 v.a. prijs per nacht

De laagste prijsgarantie!

Heb je een vraag over dit vakantiehuis?

Neem contact met ons op

  • Afwasmachine
  • Wasmachine
  • Verwarming
  • Tv
  • Parkeerplaats
  • Kinderstoel
  • Appartement
Alle voorzieningen

Omschrijving

Chalet Roji

Chalet Roji is een prachtig gerenoveerd, smaakvol ingericht pand op slechts 5 minuten van het centrum van de stad in een rustige omgeving, met vrij uitzicht en rust. Het chalet is goed bereikbaar met een bushalte op slechts 170 meter afstand. Met een eigen terras en jacuzzi biedt het een perfecte setting voor ontspanning.
Met buitenparkeerplaats, fietsenstalling en een fietsenwasplaats is dit chalet perfect voor zowel winter- als zomeractiviteiten. Als Summer Multipass Partner biedt het gasten toegang tot een verscheidenheid aan lokale bezienswaardigheden. Chalet Roji ligt dicht bij de bushalte en op slechts een klein eindje rijden van het centrum. Het biedt gemakkelijke toegang tot de winkels, restaurants en buitenactiviteiten van Morzine, zoals wandelen, mountainbiken en skiën in de winter.

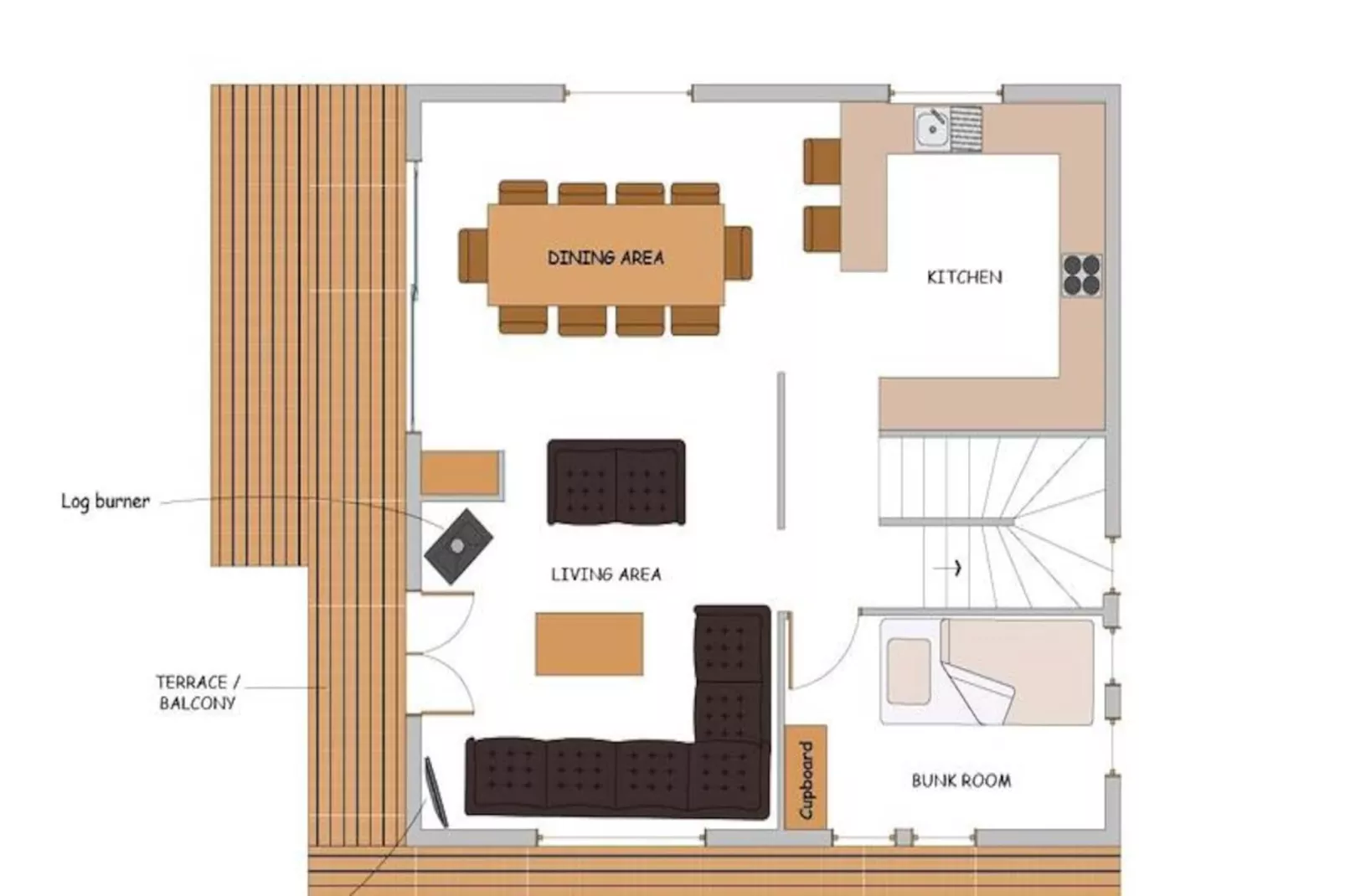
Het chalet biedt plaats aan maximaal 10 personen in de 5 slaapkamers en 4 badkamers en is verdeeld over drie verdiepingen. Op de begane grond vindt u een entree, een toilet, een skiruimte met skischoenendroger, een wasmachine en een slaapkamer met eigen douchefaciliteiten. De eerste verdieping beschikt over een ruime woonkamer met open keuken, een eethoek, een gezellige woonkamer met houtkachel en een hutgedeelte met stapelbedden. De tweede verdieping omvat drie extra slaapkamers, elk met een eigen badkamer met douche en toegang tot een balkon, evenals een aparte badkamer en toilet.

Belangrijke informatie
Type vakantiehuisje Appartement
Over het vakantiehuisje
  • Gelegen inMorzine
  • Aankomst vanaf 15:00 tot 20:00
  • Vertrektijd 10:00

Voorzieningen

Dit maakt jouw verblijf onvergetelijk

Faciliteiten
Voorzieningen
  • Afwasmachine
  • Koelkast
  • Oven / magnetron
  • Parkeerplaats
  • Tv
  • Verwarming
  • Wasmachine

Op de kaart

Alle informatie die je nodig hebt voor de juiste beslissing!

Het weer
Weather Icon 0°C Zonnig
Minimaal -1°C
Maximaal 6°C
Komende dagen
  • do. 18 /-1° 0%
  • vr. 19 /-1° 100%
  • za. 20 /0° 0%
  • zo. 21 /-1° 0%

Het klimaat in Les Lys

Het weer het gehele jaar

Maand Temperatuur (°C) Luchtvochtigheid (%) Neerslagsom (mm)
Januari /-4° 80% 100 mm
Februari /-4° 78% 90 mm
Maart /-2° 75% 90 mm
April 12°/1° 73% 95 mm
Mei 16°/5° 72% 110 mm
Juni 20°/8° 70% 110 mm
Juli 23°/10° 69% 90 mm
Augustus 22°/10° 69% 100 mm
September 18°/7° 72% 100 mm
Oktober 13°/4° 75% 110 mm
November /0° 78% 110 mm
December /-3° 80% 110 mm

Veelgestelde vragen

Antwoorden op de meest gestelde vragen over deze accommodatie

Mag ik mijn huisdieren meenemen naar Chalet Roji?
Nee, het is niet toegestaan om huisdieren mee te nemen naar Chalet Roji
Is er wifi beschikbaar bij Chalet Roji?
Nee, er is geen aanwezig op deze accommodatie.
Is er airco aanwezig bij Chalet Roji?
Nee, deze er is op deze accommodatie geen airco aanwezig.
Wat zijn de in- en uitchecktijden voor Chalet Roji
Inchecken kan vanaf 15:00 en uitchecken tot 10:00.
Heeft Chalet Roji een bad?
Nee, Chalet Roji heeft geen bad.
Kan ik mijn auto parkeren bij Chalet Roji?
Ja, Chalet Roji beschikt over een eigen parkeerpaats.
Kan ik zwemmen bij Chalet Roji?
Nee, er zijn geen zwemfaciliteiten Chalet Roji aanwezig.

Andere accommodaties in de buurt

Misschien vind je dit ook leuk

Direct te boeken
Résidence Neige Et Soleil
Résidence Neige Et Soleil
Koelkast Wasmachine Oven / magnetron Tv
Direct te boeken
Résidence L'outo
Résidence L'outo
Afwasmachine Tuin Wasmachine Oven / magnetron
Direct te boeken
Résidence Le Lapia
Résidence Le Lapia
Koelkast Tuin Wasmachine Oven / magnetron
Direct te boeken
Résidence Le Lapia
Résidence Le Lapia
Afwasmachine Tuin Wasmachine Oven / magnetron
Direct te boeken
Résidence Le Lapia
Résidence Le Lapia
Koelkast Wasmachine Oven / magnetron Tv
Direct te boeken
Résidence Le Marquis
Résidence Le Marquis
Wasmachine Oven / magnetron Tv Parkeerplaats
Direct te boeken
Appartements à Morzine
Appartements à Morzine
Koelkast Barbecue Tv Oven / magnetron
Direct te boeken
Résidence La Ruche
Résidence La Ruche
Wasmachine Koelkast Barbecue Oven / magnetron
Plaatsen in de buurt
Chalet Roji

Frankrijk - Auvergne-Rhône-Alpes - Haute-Savoie - Morzine

Fotoboek
Filteren:
badkamers
Chalet Roji-Image-tags.
Chalet Roji-Image-tags.
Chalet Roji-Image-tags.
Chalet Roji-Image-tags.
Chalet Roji-Image-tags.
Chalet Roji-Image-tags.
Chalet Roji-Image-tags.
Chalet Roji-Image-tags.
Chalet Roji-Image-tags.
Chalet Roji-Image-tags.
Chalet Roji-Image-tags.
Chalet Roji-Image-tags.
Chalet Roji-Image-tags.
Chalet Roji-Image-tags.
Chalet Roji-Image-tags.
Chalet Roji-Image-tags.
Chalet Roji-Image-tags.
Chalet Roji-Image-tags.
Chalet Roji-Image-tags.
Chalet Roji-Image-tags.
Chalet Roji-Image-tags.
Chalet Roji-Image-tags.
Chalet Roji-Image-tags.
1/ 23